空き家になっていた築70年の古民家に、少しだけ手を加えて生まれた一棟貸切宿の古民家宿【torch】(富士河口湖町/最大6名宿泊可能)は、富士山と御坂山地の間にある富士北麓地域に位置しています。
観光地として知られる河口湖の西側、季節ごとに移ろいゆく山々と静かな入り江の続く場所に佇む、1日1組限定の貸切宿です。
この古民家を見つけた時、こんな場所でゆったり過ごせたらきっと落ち着くだろうなと、自分自身が心から落ち着ける場所を皆さんと共有できたらなと、そんなことを思い描いていました。
ここは、日々頑張っている大人たちが、思い思いに過ごせる宿です。
いつもの日常から少し離れて、羽を伸ばせることを願っています。 (宿主)
当宿が位置する「長浜地区」は、富士河口湖町において数少ない富士山の見えない地域ですが、静かでのんびりと過ごせる場所となっています。
そんな山間に、人が集まる小さな光があればと、【torch (松明)】と名づけました。
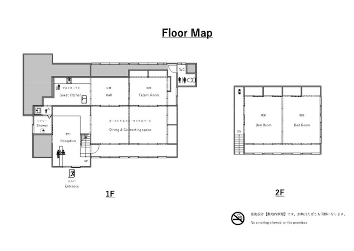
建築現場の足場として活躍していた木材。今は看板として、宿を見守ってくれています。宿の玄関は広い土間となっています。居間へと続く上がり框の下部は収納スペースとなっており、昔は作業道具や農具の収納場所として活用されていたそうです。
熱がこもりにくいので、夏場は上がり框に座り、玄関から吹き抜ける風を感じるのもおすすめです。


玄関から入って正面にはゲスト用の簡易キッチンがございます。基本的な調理道具やお皿、カトラリーまで一式ございますので、自由にご利用ください。
古民家宿torch / kitchen
【調理器具類】
・電子レンジ・炊飯器・電気ケトル・IHコンロ・冷蔵冷凍庫
・まな板・包丁・おたま・菜箸・トング・木ベラ・ゴムベラ・フライパン・鍋・土鍋・水切りボウルセット
・丸皿大2枚・丸皿中6枚・小皿6枚・ご飯茶碗・汁椀・取り皿・ワイングラス・コップ(ガラス/陶器)
・お箸・スプーン・ナイフ・フォーク・箸置き・急須
・水切りラック・布巾・ラップ・アルミホイル・キッチンペーパー・ペーパータオル
古民家の一階は障子扉を開けると全ての部屋がつながる開放的な空間となっています。夏は縁側で涼んだり、冬は暖をとりゆったりと、四季を感じる過ごし方をお楽しみいただけます。

2階の和室は寝室となっています。畳のあるお部屋には、日本古来の低い視線の方がいいと思い、寝具は全てお布団となっています。
古民家宿torch / tatami room(the second floor)梁が低かったり、階段が急だったり、一昔前の懐かしさを感じる、少し気をつけなければいけない宿。
快適に過ごせる場所も素敵ですが、小さな不便が時にはとても愛おしくなったりするものです。
そんな場所を求めている方はぜひ、遊びにいらしてください。