月星日 TSUKIHOSHIHI.Stay - 1

月星日 TSUKIHOSHIHI.Stay

鹿児島県大島郡龍郷町

月星日 TSUKIHOSHIHI.Stay

ご滞在中、心地よく過ごしていただけるよう、
お部屋には下記の設備・アメニティをご用意しております。

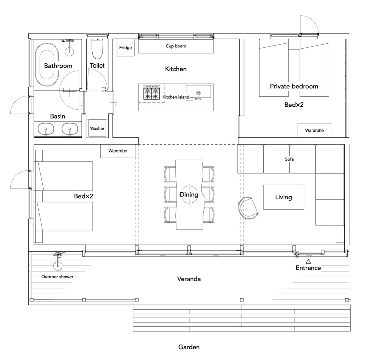
三名様以上のご滞在には、個室(Private bedroom)もご利用いただけます。

Living & Dining
ダイニングテーブル・チェア・ソファ・シューズラック・スリッパ
冷暖房エアコン・Wi-Fi・Bluetoothスピーカー・各種書籍
※スリッパをご用意しておりますが、共用が気になる方は、お気に入りのものをご持参ください。

  

Kitchen
冷凍冷蔵庫・ガスコンロ(4口)・浄水器付水栓・食洗機
オーブントースター・炊飯器・電気ケトル
鍋・フライパン・ボウル・ざる・包丁・キッチンばさみ・まな板
菜箸・お玉・フライ返し・トング・しゃもじ
ワインオープナー・スライサー・ピーラー・米計量カップ
食器(皿(大小)・スープカップ・丼・飯碗・汁椀・タンブラー・ワイングラス・湯呑み・マグカップ・ティーポット・コーヒードリッパー)
カトラリー(箸・箸置き・スプーン・デザートスプーン・フォーク・デザートフォーク・ナイフ)
コースター・ポットマット・プレースマット
食器用洗剤・スポンジ・キッチンタオル・ディッシュクロス・ふきん・ラップ・アルミホイル・キッチンペーパー
分別ごみ箱・ごみ袋・ほうきとちりとり
ミネラルウォーター・お茶・コーヒー
調味料(醤油・塩・砂糖・胡椒・オリーブオイル)

  

Bedroom
ワードローブ・ハンガー・ベッドサイドランプ
※パジャマ・ルームウェア・バスローブなどの部屋着のご用意はございません。普段から着慣れたお好みのものをご持参いただき、ゆっくりとお過ごしください。

  

Bathroom
洗面ボウル・バスタブ・レインシャワー
シャンプー・コンディショナー・ボディソープ
バスタオル・フェイスタオル・バスマット
ヘアドライヤー・コップ・ハンドソープ・コットン・綿棒
ランドリーバスケット・バスタオルハンガー
サニタリーボックス・スツール
※環境への配慮から、歯ブラシ・ヘアコーム・カミソリ・シャワーキャップなどの使い捨てアメニティのご用意はございません。
歯ブラシや歯磨き粉は、帰宅後も長くお使いいただけるものをショップにてご用意しておりますので、よろしければご利用ください。

  

Laundry & Toilet
洗濯乾燥機・洗濯用洗剤
室内用物干しラック・ピンチハンガー・ハンガー
ウォシュレット・トイレブラシ

  

Garden
屋外温水シャワー・屋外用物干しラック・外用ほうき

施設情報

施設名

月星日 TSUKIHOSHIHI.Stay

メールアドレス

tsukihoshihi.stay@lin-inc.com

電話番号

070-8362-0727

SNS

アクセス

鹿児島県大島郡龍郷町芦徳727

留意事項

チェックイン・アウト

チェックイン

15:00 ~ 18:00

チェックアウト

~11:00

ポリシー

キャンセルポリシー

1日前:税込料金の100%3日前:税込料金の80%7日前:税込料金の50%

キッズポリシー

0〜5歳:大人料金の0%6〜19歳:大人料金の100%

添い寝の場合

0〜5歳:大人料金の0%の料金

施設設備・サービス

お部屋の設備・アメニティ

アメニティ / 設備 / バスルーム

スリッパ
綿棒
Wi-Fi
調理器具
他19項目

施設設備・サービス

プール・スパ・温泉 / 交通・シャトル

マッサージ
駐車場

施設に関する注意事項

宿泊人数について

1日1組限定・定員4名 3名以上のご滞在には、個室(2ベッド)もご用意しております。 なお、宿泊者さま以外の方のご入室はご遠慮いただいております。

アクセスについて

奄美空港より車で約20分、名瀬港より車で約40分。送迎のご用意はございません。 公共交通機関「しまバス」をご利用の場合、当宿のあるエリアは路線外となります。最寄りの停留所から徒歩で約40分ほどかかりますため、レンタカーまたはタクシーのご利用をおすすめしております。

駐車場について

敷地内に専用駐車スペースをご用意しております。 ショップのお客さまと並列となりますため、指定のスペースへのご駐車をお願いいたします。

お食事について

朝食夕食のご提供はございません。近隣のおすすめのお店をご紹介しております。 調理器具一式をご用意しておりますので、近隣のスーパーで島の食材を手に入れて、旬の恵みをお愉しみください。調味料は、塩、砂糖、醤油、胡椒、オリーブオイルをご用意しております。 また、各種お飲みもの、パスタ、トマトソースなどの有料のご用意もございますのでお問い合わせください。 誠に恐れ入りますが、揚げ物調理は安全上ご遠慮いただいております。

お子さまのご滞在について

当宿はお子さま向けに設計された宿ではございません。同伴される保護者の方に以下をご理解・ご同意いただいた上でのご予約をお願いいたします。 ・お子さま用の寝具、家具、カトラリー、アメニティ等のご用意はございません。 ・静かな集落の中に位置しておりますため、夜間はお静かにお過ごしください。 ・階段やデッキの段差、大きなガラス、家具の角、ロールスクリーンのチェーンなど、小さなお子さまには危ない箇所がございます。ご滞在中は必ずそばで目を離さないよう見守りをお願いいたします。

チェックインについて

18:00を過ぎる場合は、事前にご連絡ください。21:00以降のチェックインは基本的にお受けできません。 ご到着の際はショップフロントにてお声がけください。 お部屋はスマートロックを採用しております。チェックイン時に、ご滞在中ご利用いただけるパスキーをご案内いたします。

お荷物について

チェックイン前・チェックアウト後のお荷物は、ショップにてお預かりが可能な場合がございます。 日時やスタッフの在席状況によりお受けできない場合もございますので、ご希望の際は事前にご相談ください。 また、お荷物を事前にご送付いただく場合は、「ご宿泊代表者名・発送者名・チェックイン日」をご明記のうえ、元払いにてお送りください。往復でのご利用をご希望の場合は、「往復宅配」をご利用いただくとお手続きがスムーズです。

アメニティについて

環境への配慮から、歯ブラシ・ヘアコーム・カミソリ・シャワーキャップなどの使い捨てアメニティのご用意はございません。 歯ブラシや歯磨き粉は、帰宅後も長くお使いいただけるものをショップにてご用意しておりますので、よろしければご利用ください。 また、パジャマ・ルームウェア・バスローブなどの部屋着のご用意もございません。お好みのものをご持参のうえ、ゆったりとお過ごしください。

お部屋について

左官壁や無垢材など、自然の風合いをそのままに生かした設えのお部屋でございます。 素材の特性上、繊細な部分もございますので、お取り扱いにはご配慮いただけますと幸いです。

近隣のスーパーマーケット、コンビエンスストアについて

スーパーマーケットまで車で約15分、コンビニエンスストアまで車で約10分の距離にございます。 周辺マップもご用意しておりますので、お買いものをされる際にご活用ください。

島の生きものについて

森に近い場所に位置しているため、ヤモリや小さな虫たちが室内に入り込むことがございます。 小さな先住民たちの訪問をどうか大らかにお許しください。

バリアフリーについて

誠に恐れ入りますが、施設内には段差があり、バリアフリー対応ではございません。 基本的にはお連れさまによるご補助をお願いいたします。

清掃について

4泊以上のご滞在の場合、3日に一度リネン交換をいたします。長期ご滞在のお客さまについてはチェックイン時にご希望を伺い、対応させていただきます。 1週間を超える長期滞在の場合は、ご要望に応じて無料で清掃に入らせていただきます。

煙草・火の取り扱いについて

建物内およびデッキは、電子たばこ・加熱式たばこを含め全面禁煙です。ご喫煙の際は、携帯灰皿をご持参の上、芝生のお庭にてお願いいたします。 敷地内および近隣海岸でのBBQ・焚き火・花火はご遠慮いただいております。

ペットについて

誠に恐れ入りますが、ペットのご同伴はお受けしておりません。ご理解のほどお願いいたします。

撮影やイベントについて

撮影・SNS・広告・企業合宿・イベントなどでのご利用をご検討の場合は、事前にお問い合わせください。

自然災害によるキャンセルについて

台風や地震などの自然災害により、以下のいずれかに該当する場合は、キャンセル料は頂戴いたしません。 ・ご到着予定の交通機関が欠航となった場合 ・ご滞在予定日に暴風警報または特別警報が発令されている場合 ・安全上の理由により、当方よりキャンセルをお願いする場合 交通費などの補償につきましてはいたしかねますので、あらかじめご了承ください。 また、チェックイン予定時刻までにご連絡なくお越しいただけなかった場合は、通常のキャンセルポリシーが適用されます。

月星日 TSUKIHOSHIHI.Stay

鹿児島県大島郡龍郷町